Công ty TNHH Thiết Kế Xây Dựng LÊ PHAN gởi đến các bạn mẫu Thiết kế xây nhà phố 3 tầng 4x16m có sân thượng của gia đình chị Hồng được Công ty xây dựng LÊ PHAN thiết kế tại quận 2 – TP HCM. Đây là mẫu thiết kế nhà ống cơ bản và đơn giản nhưng lại đầy đủ tiện nghi sử dụng và sinh hoạt hằng ngày.
Mẫu thiết kế nhà phố 3 tầng có sân thượng được sử dụng tone màu trắng kem của sơn tường nhẹ nhàng, nhấn nhá các mảng nhỏ ốp gỗ làm điểm nhấn nổi bật cho thiết kế nhà phố và thêm nét duyên dáng , hài hòa trong kiến trúc làm căn nhà càng sang trọng và thanh lịch hơn.
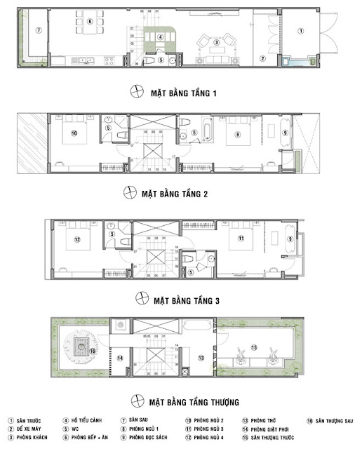
Thiết kế nội thất bên trong nhà phố 3 tầng 4x16m
Công ty TNHH Thiết Kế Xây Dựng LÊ PHAN chuyên tư vấn thiết kế xây nhà phố, xây nhà ống, xây biệt thự trọn gói, uy tín, chất lượng giá cả phải chăng. Hãy liên hệ với công ty xây dựng chúng tôi để được tư vấn thiết kế ngôi nhà đẹp nhất.

































